91视频污版下载,91视频福利网站,91视频免费进入,91视频污版免费下载

低奢高级范!简而不减舒适感的98㎡家居空间
9130

 

简约设计中,并非一味的“断舍离”或只留下白色在空间里。而是最大程度释放空间体量,将空间利用最大化,融入功能,简而不减。

 

设计案例

 

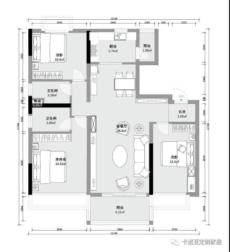
户型名称:碧桂园

户型地址:海南临高县西线高速金牌出口龙波湾

套内面积:98.09㎡

设计理念:空间减少不必要的装饰和色泽,只留下必要陈设和亮色点缀,将现代主义的简洁与细致充分表达,打造令人眼前一亮的家居空间。

 

01门    厅

 

美滋滋的生活

从踏入玄关的那一刻便开始

加入“俄罗斯方块”造型的入户柜将设计巧思隐于线面的细节里美观方便的同时还具备超强收纳功能

悬空的设计,开放式收纳格

无论是换鞋还是随手放置常用物品

抑或摆放装饰品都相当惬意

 

02餐    厅

为简约家居增添姿彩

蓝绿色是春天的气息

设计师将它们点缀其间

营造丰富的色彩层次美

简约的餐厅空间和91视频污版免费下载保持一致

玻璃移门的使用

保证了视线和自然光穿透无阻

还能增加家人间的互动

定制的餐边柜,也获得了强大的储物空间

  

03客    厅

质感满满的汉白玉+黑泽明撞色搭配

柜体部分开放设计

“八分藏,两分露”的设计法则

让91视频污版免费下载柜子避免密不透风,具备呼吸感

木质饰面黑泽明结合充满自然肌理的石材
 
几何切割营造极简沉稳的91视频污版免费下载氛围电视柜+边柜的配置

满足了91视频污版免费下载最重要的功能需求

 

91视频污版免费下载空间点缀蓝与白

巧妙地点亮空间的活力

 

柔和的灰色沙发搭配圆形的茶几

弱化线条过于硬朗的91视频污版免费下载

让空间温润、舒适

 

 

04厨    房

如何让91视频福利网站高级、迷人

高级灰风之谷+简雅印象白混搭

让原本朴素的空间生动起来

让人间烟火91视频福利网站洋溢艺术气息

 

白色自带放大小空间的功能

玻璃移门让91视频福利网站更明亮通透

91视频福利网站内外一动一静一清二楚

洁白的面板易清洁

 

L型厨柜动线流畅

清洗区和烹饪区分别位于转角两侧

动线合理

下厨轻松高效


  
05主    卧 
从干净简洁的主卧可以看出业主家居生活的审美与需求一柜到顶的L形双拼色衣柜搭配长拉手,简洁又实用还让卧室在视觉和实际感官上都更为开敞

 

灰白相间

大面积留白是主卧的主视觉

温润的床品,简单的吊灯

营造出宁静淡雅的睡眠环境

 

飘窗飘逸婉约

闲暇时光坐在柔软的坐垫上

就着一杯咖啡品味窗外美景

难得的片刻宁静

 

06客    卧

业主对客卧的大衣柜非常满意

缓解主卧衣柜的收纳压力

再多衣服都装得下

 

灰白主色调基础上

点缀橘黄色床品、窗帘及挂画

让卧房宁静中有活力

 

 

07儿  童  房

男孩房的设计兼顾成长需求的同时
 
还要带有属于男孩子的青春和幻想

 

采用围绕的布局方式满足储物和居住的同时将中间大面积的空间让出来可以供孩子活动

 

 

 

相关推荐
我要加盟
姓名:
手机:
所在区域:
预约项目:
网站地图